우리 주 예수 그리스도께서 십자가에 못 박히시고, 죽으시고, 묻히신 후 부활하신 성지 중의 성지인 "주님 무덤 성당"을 소개합니다.


중앙에 있는 문장(Emblem)은 1217년부터 800년 동안 거룩한 주님의 성지를 지켜오고 있는 프란치스칸 성지 보호 관구의 상징입니다. 제일 위쪽의 왕관은 세상의 임금이신 하느님의 통치권을, 그 아래 비둘기는 거룩한 예루살렘의 시온산에서 성령 강림을 통해 교회가 시작되었음을 보여줍니다. 그 아래 왼쪽 띠는 거룩한 시온산을 그리고 오른쪽은 예루살렘이 적혀 있는 띠입니다. 중앙 파란 바탕의 오른쪽 발가 벗겨진 팔은 예수님이시고 왼쪽 팔은 수도복을 입고 있는 성 프란치스코의 팔인데 둘다 손바닥에는 십자가에 못 박혔던 상흔이 남아 있습니다. 그 아래 다섯 개의 십자가는 바로 아래 쪽 설명을 참조 하시고...제일 아래쪽에 있는 나뭇 가지 중 오른쪽은 예수님께서 예루살렘에 입성할 때 예루살렘 백성들이 손에 들고 환호하던 야자나무 잎과 왼쪽은 임금이나 대사제의 축성에 사용되는 올리브나무를 보여줍니다. 이것은 베타니아에서 이름없는 여인이 예수님의 머리에 향유를 부은 사건을 상기시켜 줍니다. 메시아라는 의미는 머리에 기름 부음 받은 이 입니다.

왼쪽 십자가는 예루살렘 또는 예루살렘 성지를 지키고 있는 프란치스칸(작은형제회) 십자가입니다. 다섯개의 십자가로 이루어져 있는데 가운데 큰 십자가는 예루살렘을, 그리고 작은 네 십자가는 동.서.남.북을 상징합니다. 그래서 세상의 중심인 예루살렘을, 예루살렘의 중심인 무덤 성당을 가리키고 있습니다. 또한 큰 십자가는 예수님을 가리키고 나머지 작은 네 십자가는 주님의 죽음과 부활을 이야기 하고 있는 네 복음서를 가리키기도 합니다. 반면 오른쪽은 예루살렘 그리스 정교회 총대주교좌의 상징입니다. 타포스(taphos)라고 부르는데 그리스어 철자 타우(Tau)의 τ와 피의(phi)의 φ가 합성된 것으로 이것은 예루살렘의 주님무덤(Tomb 또는 Sepulchre)를 의미합니다.

1581년 독일의 개신교 신학자인 하인리히 번팅이 그린 세계 지도입니다. 세 개의 이파리는 유럽과 아시아 그리고 아프리카가 있고 그 중심에 예루살렘이 위치해 있습니다. 이것은 예루살렘이 "세상의 중심"임을 상징적으로 표현하고 있습니다. 에제키엘 38,12에서는 "여러 민족들에게서 모여 와 세상의 중심에 살면서...."라고 언급합니다.

반면, 기원후 6세기에 요르단 마다바 시에서 발견된 성당 제대 아래쪽에 있는 성지의 모자이크 지도에서는 예루살렘의 지도를 보여 주면서 그 중심엔 "주님의 무덤 성당"이 위치해 있음을 그리고 있습니다. 모자이크에서 1번은 다마스커스 성문에서 12번 시온 성문으로 이어지는 13번의 대카르도가 연결되어 있고 그 중심엔 16번 무덤 성당이 있습니다.

위쪽 그림 오른쪽에서 보면 예수님 시대의 성벽이 있고, 성벽 밖에 골고타가 왼쪽에 있는것이 보입니다. 기원후 135년 예루살렘을 완전히 파괴한 로마 하드리아누스 황제는 이제 막 싹트기 시작하는 그리스도교의 싹을 자르기 위해 예수님의 무덤과 골고타 위에 로마 비너스 신전과 쥬피터 신전을 짓습니다. 역설적이게도 이 신전들 덕분에 325년 성지 순례를 온 황후 헬레나에 의해 정확한 예수님의 수난 장소와 무덤이 성역화가 됩니다. 위의 그림에서 무덤과 골고타가 어떻게 변하게 되는지를 볼 수 있으며, 첫 번째 기념 성전은 10년에 걸쳐 완공되게 됩니다.

위의 지도는 예수님 시대의 예루살렘 성벽을 보여줍니다. 짙은 검정색이 예수님 시대의 성벽이었기에 1번 골고타는 성벽 밖에 위치해 있음을 볼 수 있습니다. 화살표가 가리키는 옅은선은 오늘날의 성벽입니다. 오늘날의 성벽은 오스만 투르크의 술탄인 슐레이만 1세(Sultan Suleiman 1)에 의해 1537-1541년에 복원된 것입니다.

위 그림은 예수님 무덤 성당과 카르도 그리고 예수님 시대의 성벽이 지나가는 고고학 도면입니다. 이것은 독일 팔레스타인 협회의 Baurath C.Schick가 그린 도면인데 3번 붉은 선이 지나가는 곳이 예루살렘 성벽이고 1번은 골고타 2번은 예수님 무덤이 됩니다.

위의 사진은 예수님의 무덤을 상상해 볼 수 있는 예수님 시대의 유대인 묘지입니다. 2번은 무덤 안으로 들어가는 작은 입구가 있고(입구로 들어가면 넓은 공간이 있음), 이 입구를 1번의 둥근 돌을 굴려 시신을 안치한 후 둥근 돌을 굴려 입구를 막는 방식입니다.

헬레나 황후에 의해 지어진 첫 번째 무덤성당 조감도입니다. 1번은 다마스커스 성문과 시온 성문으로 연결되는 로마시대의 대로인 카드로가 있고, 대로를 통해 성당으로 들어가게 됩니다. 2번은 예수님이 수난당하시고 돌아가신 골고타가 있는 3번에 연결되어 있는 첫 번째 기념 성당인 "마르트리움"(순교라는 의미)이 있고 4번은 별관식으로 따로 예수님 무덤 경당이 있었습니다.

1번 골고타는 올려다 볼 수 있는 구조로 되어 있었고, 골고타의 동쪽으로는 첫 번째 기념 성당인 "마르트리움"이 지어졌습니다. 그리고 3번은 별관식으로 예수님의 무덤 경당이 따로 있었으며 무덤과 골고타 사이는 하늘이 열려있는 회랑인 구조였습니다.

예수님 무덤 경당은 주님의 부활을 기념하는 주일과 부활시기에 신자들이 촛불을 들고 행렬할 수 있는 둥근 구조로 지어졌습니다.

헬레나 황후에 의해 지어진 첫 번째 기념 성전의 입제척인 조감도

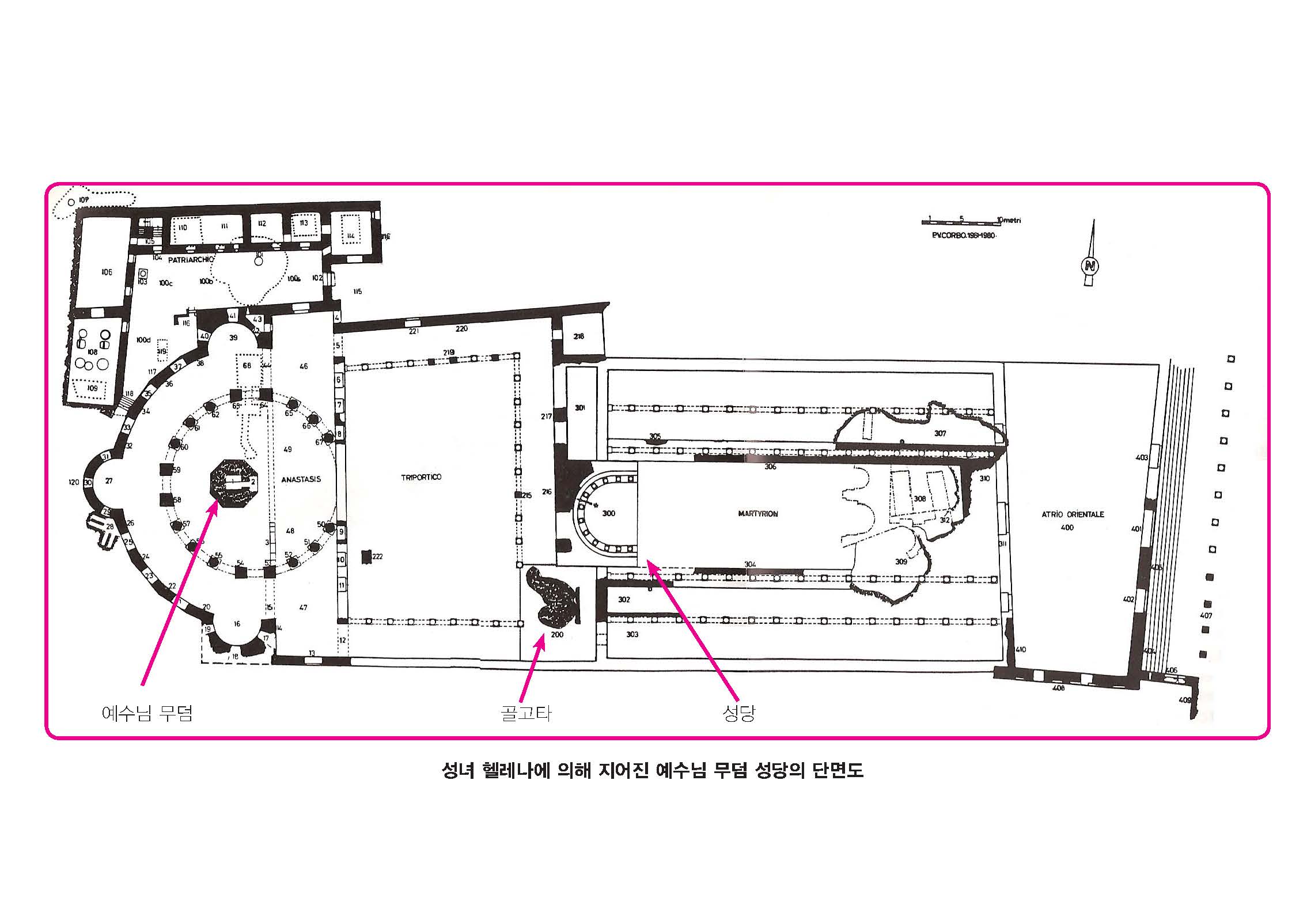
헬레나 성녀에 의해 지어진 예수님 무덤 성당의 단면도

1009년 이집트의 알 하킴에 의해 파괴된 이후 비잔틴 황제 모노마쿠스에 의해 일부 축소되어 복원된 조감도

예루살렘을 수복한 십자군들이 1099년부터 50년에 걸쳐 복원된 예수님의 무덤 성당 조감도. 검정 부분들이 중점적으로 복원된 곳들.

예수님의 무덤경당만을 따로 그린 조감도. 1번은 프란치스칸들의 장엄미사(창미사)때 성가대석이 있는 자리이며 2번은 천사들의 발현 경당 그리고 3번이 예수님의 시신이 눞혀졌었고 부활한 무덤제대. 4번은 이집트 콥트 정교회의 작은 경당이다.

위의 무덤성당 그림은 독일 베른하르트 폰 브라이덴바흐에서 온 순례자, 에르하르트 로윅이 예수님 무덤 성당 남쪽을 그린 그림(15세기). 왼쪽은 높은 종탑이 있고, 마당에는 프란치스칸 수도자들이 기도하고 있다.

1555년 주님의 무덤성당 복원 기간에 주님 무덤을 지지하고 있는 프란치스칸들.

남쪽에서 바라본 주님 무덤 경당. 1681년 브륜 작

주님무덤 경당 위쪽의 돔 복원 공사. 1868년.

주님무덤 성당을 지키는 경찰. 1917년. 무덤성당 입구 위쪽 상인방에 있는 1번 벽의 부조들은 영국군이 위임통치하던 기간(1918-1947)에 떼어다가 록펠러 박물관에 전시하고 있다.

예수님 무덤성당의 입체적인 조감도

예루살렘을 점령한 쿠르드족의 맹장인 살라딘(1138?~1193년)은 무덤성당의 모든 입구를 막고 단 하나의 출입구만 남겨놓고는 성당 문의 열쇄를 이슬람 두 가문에게 맡겼다. 한 가문은 열쇄를 보관하고, 다른 한 가문은 성당 문을 열고 닫게 했는데 그 전통이 오늘날까지 전해져 내려오고 있다. 성당문을 닫기 전 안쪽에 있던 사다리를 밖으로 내주면 밖에서 대문을 걸어 잠구고 다시 사다리를 안쪽에 보관한다.

2009년 5월 15일 예수님 무덤성당을 방문하며 예수님을 염한 돌에 친구하시는 베네딕도 교황 16세

사순시기 장엄 전례 중 매일 행렬 기도 모습. 예수님을 염한 돌

예수님 무덤경당 안 모습. 순례자들이 오랜 시간동안 줄을 서서 기다린 후 친구하는 장소. 2016년 10월 26일, 무덤경당을 복원하면서 두 개의 대리석 뚜껑을 당겨서 열고, 그 안쪽에 있던 십자가를 확인하고 밤새 기도한 후 다음날 다시 대리석을 닫는 예식을 각 그리스도교 교파 책임자들이 모여 거행하였다.

위의 사진은 2016년 10월 26일 무덤경당의 예수님을 뉘였던 곳의 대리석을 열고, 그 이전 프란치스칸들이 복원하며 새겨놓은 십자가.

무덤제대가 낮기 때문에 미사 봉헌을 위해 임시 제대를 만든 모습. 무덤성당의 프란치스칸들은 매일 아침 5시부터 8시까지 이곳에서 미사를 거행한다.

성 목요일날 무덤제대 위에 만든 이동감실

무덤경당 천사들의 발현 경당에서는 보통 말씀의 전례를, 그리고 그 안쪽 무덤제대 안에서는 성찬의 전례를 거행한다.

장엄미사(창미사) 모습. 시작기도와 말씀의 전례는 밖에서 하고, 다시 마침 예식도 밖에서 한다.

골고타의 12처 모습. 중앙에 예수님 십자가가 있었고, 그 좌우에는 성모님과 요한이 있다. 정교회의 제대 안쪽에는 무릎을 꿇고 1번 위치에 손을 넣으면 골고타의 바위를 직접 만져볼 수 있다. 그리고 이콘 바로 뒤에는 십자가를 세웠던 구멍이 파여있는 곳이 있다.

골고타에 있는 성모통고 제대의 성모님상. 시메온의 예언처럼 성모님의 가슴엔 예리한 칼이 꽂혀 있다. "그리하여 당신의 영혼이 칼에 꿰찔리는 가운데, 많은 사람의 마음속 생각이 드러날 것입니다."(루카 2,35)

골고타의 십자가 현양제대. 이곳에서도 매일 아침 5시부터 7시 미사까지 30분 간격으로 십자가 현양미사를 봉헌할 수 있다.


발현 경당. 예루살렘 전승에 의하면 부활하신 예수님께서 제일 먼저 만나는 인물은 성모님이시다. 이디오피아어로 전해져 오는 외경 가말리엘의 복음에 따르면 부활하신 예수님과 성모님의 모습을 다음과 같이 표현하고 있다. 왼쪽 부조의 왼쪽 상단에는 라틴어로 다음과 같이 씌여 있다. "VIRGINIS OCULI PLENI FACTI SUNT FILII VISU ET IPSA VULTUM EIUS INTUITA EST DIVINUM." 동정녀의 눈은 아들을 보자 충만해졌고, 그녀는 그분의 신성한 얼굴을 바라보았다
오른쪽은 예수님 채찍 기둥이다. 초세기부터 시온산에 모셔져 오던 이 돌기둥은 프란치스칸들이 시온산에서 쫓겨날때 무덤성당에 모셨다. 성주간 수요일이 되면 돌기둥 경배 예식이 있고, 우리 신자들 뿐만 아니라 정교회 신자들도 미사가 없어 문이 열려 있으면 어루만지며 친구하는 돌기둥이다.
이 발현경당에는 성체가 모셔져 있는 감실이 중앙에 모셔져 있어 성체경당이라고도 한다. 매일 프란치스칸들은 이곳에서 시작하여 마지막에 이곳에서 성체 강복으로 끝나는 매일 행렬기도를 한다. 겨울철엔 오후 4시, 하절기엔 오후 5시.

발현경당 북쪽에 있는 십자가의 길 성상

행렬기도 후 성체 강복으로 마무리.

무덤성당 프란치스칸 제의실에 모셔져 있었던 제1차 십자군 원정에서 예루살렘을 수복한 고드프레이의 칼. 지금은 성지관구 본부 박물관에 모셔져 있다. 아직은 공사중...

예루살렘 전승에 의한 예수님 부활 성화. 부활하신 예수님께서 어머니를 제일 먼저 만나는 장면. 왼쪽 어둡게 보이는 동굴 위에는 발가벗은 아담과 하와가 있다. 하와는 창피해 얼굴을 가리고 있고, 아담의 손에는 붉은 사과가 들려 있다. 그리고 그들 뒤쪽으로는 다윗, 세례자 요한, 모세, 요아킴과 안나 등 예수님의 조상들이 그려져 있고 오른쪽에는 천사들이 환호하고 있다.

십자군 경당의 내부

사순시기 매 주일에 있는 장엄전례의 모습. 부활하신 예수님을 처음 만난 마리아 막달레나를 기념하는 제대

요한복음에서 정원지기인 예수님을 만나는 마리아 막달레나. 그의 두 눈엔 눈물이 가득하다.

그리스 정교회의 카톨리콘. 카톨리콘은 "본당"이라는 뜻이다.

카톨리콘 안에 있는 우주의 중심을 상징적으로 보여주는 배꼽(옴파로스). 동서남북의 중앙이 바로 이곳 예루살렘의 무덤성당이다.

카톨리콘 돔 안쪽에 있는 우주의 왕이신 예수그리스도 이콘(판토크라토르)

예수님의 십자가를 되찾은 기념 경당. 헬레나 성녀에게 봉헌되어 있고, 무덤성당 고유 전례인 십자가 되찾은 기념 축일의 준비 모습

무덤성당에서 성지주일 행렬 모습. 야자나무를 흔들며 무덤제대를 세 번 돌며 행렬한다.

성금요일 밤에 거행하는 예수님 장례 행렬. 십자가에서 예수님의 성시를 내리고, 향유를 바른 후 무덤에 안치한다. 부제가 가시관을 벗기는 모습

예수님 장례 행렬에서 부제가 손에 박힌 못을 빼는 모습

예수님을 염한 돌 위에서, 십자가 위에서 내리신 성시에 나르드 향유를 바르고 분향

예수님의 성시를 아마포에 싼 후 무덤에 안치하는 모습

장엄 전례 거행 모습. 무덤제대 밖에 임시 제대를 만들어 거행한다.

성목요일 성유축성과 만찬 미사 후 무덤제대를 행렬하는 모습

초세기에 예수님께 가족묘를 선뜻 내어드린 아리마태아와 나타나엘의 묘지. 아르메니아 사도교회의 소유이나 주일과 대축일에는 시리아 정교회가 미사를 봉헌한다.

정교회의 부활성야 거룩한 불 예식. 정교회에서는 오직 이곳 무덤성당에서만 빛의 예식을 거행할 수 있는데, 빛의 예식 이후 러시아나 주요 정교회 국가에 봉송되면 그곳에서는 부활 예식을 거행할 수 있다. 정교회에서는 다른 예식 없이 빛의 예식으로만 끝난다.
시간의 흐름은 흔적을 남깁니다. 우리는 이것을 역사라고 부릅니다. 그리고 우리는 시간의 흐름속에서 열매 맺게되는 과거와 오늘의 흔적들의 해석을 "전승"이라고 이름 짓습니다. 아버지 어머니가 예전 이야기를 들려주는 그 모든 것들은 전승의 영역입니다. 그래서 옛 이야기는 생명을 갖고 있습니다.
우리는 우리 신앙의 모태인 유대교를, 그 신앙의 해석인 유다이즘을 빼놓고 그리스도교를 이야기 할 수 없습니다. 마치 힌두이즘을 알지 못하면서 불교를 이해할 수 없듯이 말입니다.
유대교는 모세 오경과 그 해석에 대한 3000년의 해석인 탈무드와 함께 합니다. 그렇다면 우리 그리스도교는 복음과 함께 같은 동시대의(편집 과정이 100여년 안에 완결된) 서간들과 묵시록과 함께 마무리 되었지만, 예수님의 말씀은 오늘을 사는 우리들의 시간 안에서 재해석 되어져야 하고 적용되어야 합니다. 예수님의 말씀이 먼 옛날 옛적의 이야기가 아닌 오늘 우리의 귓전에 울려 퍼져야 함을 제2차 바티칸 공의회는 우리들에게 성토하고 있습니다. "하느님의 말씀은 살아 있고 힘이 있으며 어떤 쌍날칼보다도 날카롭기."(히브 4,12 참조)때문입니다.
1654년 11월 23일, 프랑스의 심리학자이자 수학자, 과학자이고 철학자였던 블레즈 파스칼(Blaise Pascal, 1623.6.19~1662.8.19)은 "성서적 신앙은 역사적 신앙이지 사변적 신앙이 아니다!"고 그의 신앙 체험을 쪽지에 적어 옷안에 꿰매달았습니다. 그러면서 "불, 아브라함의 하느님, 이사악의 하느님, 야곱의 하느님... 철학자와 현자의 하느님이 아니다!"는 신앙 체험을 우리에게 전해주고 있습니다.이것이 오늘을 살고 있는 우리에게 시사하는 바는 "나"는 바로 오늘 이 시공간 안에 살고 있는 존재이고, 그 "존재의 집"인 바로 이곳이 "임마누엘"이신 하느님을 만나는 장소라는 것입니다.
성지순례는 지난 과거의 발자취를 통해 오늘의 나를 성찰하는 자리이겠고, 이 성찰의 시간은 오늘을 충만케 하는 축복이자 내일을 희망하는 은총의 시간일것입니다.
나는 지금 어디에 서 있습니까?
'예수님 무덤 성당' 카테고리의 다른 글
| 2019년 예루살렘 성주간 전례 안내 (0) | 2019.04.09 |
|---|---|
| 2017년 예루살렘 사순-성주간-부활시기 전례 안내 (0) | 2017.02.05 |
| 2015년 예루살렘 성주간 전례 안내 (0) | 2015.03.27 |
| 무덤성당 - 거룩한 무덤 대성당에서 날마다 하는 행렬 예식서 (0) | 2015.02.08 |
| 무덤 성당의 오늘과 어제-3차원 과거로의 여행 (0) | 2014.06.09 |